売買 中古マンション | 新宿区西新宿 | 荒川区周辺の不動産情報はセンチュリー21たばたコーポレーション 公式YouTubeチャンネル登録者1.4万人突破!

新宿区西新宿の不動産物件

●眺望良好の大規模タワーマンション ●24時間対応各階ごみ置き場 ●都庁 新宿まで徒歩圏内 ●コンシェルジュサービス、ゲストルームなど室内環境充実
【中古マンション】 NEW! オススメ ペット
価格 14,500万円 (税無)
東京都大江戸線 西新宿五丁目駅 徒歩7分
スマホ表示
物件コード:036501-221963
所在地 管理費 専有面積
バルコニー面積
間取り
所在階
築年月
東京都新宿区西新宿 17,420円 57.94m2
9.95m2
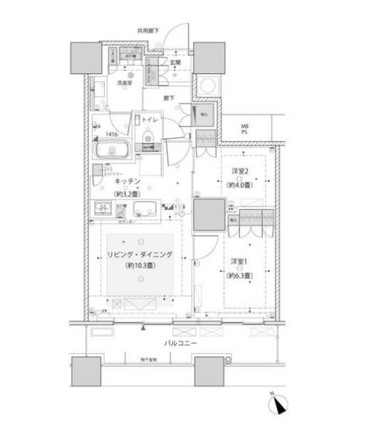
2LDK
36階
2017/08

物件基本情報

物件種目 中古マンション
物件名称 ザ・パークハウス西新宿タワー60
所在地 東京都新宿区西新宿
交通
東京都大江戸線 西新宿五丁目駅 徒歩7分
東京地下鉄丸ノ内線 西新宿駅 徒歩9分
修繕積立金 10,440円
所在階/階数 36階 / 60階建 (地下2階)
総戸数 954戸
建物構造 鉄筋コンクリート造
駐車場 空無 45,000円
学校 -
設備・条件
  • 床暖房
  • システムキッチン
  • 追い焚き
  • 洗浄便座
  • 室内洗濯機置場
  • エアコン
  • CATV
  • エレベーター
  • オートロック
  • TVドアホン
  • 宅配ボックス
  • 駐輪場
  • バイク置き場
  • ペット可
  • 浴室乾燥機
  • IHクッキングヒーター
  • 給湯器
センチュリー21たばたコーポレーション
0120-360-201
携帯電話・PHSからは 03-3803-5377

紹介動画

画像・写真

周辺地図

地図を表示中...
ストリートビュー未対応エリアです。

物件詳細情報

物件用途 居住用 土地面積 -
間取り詳細 - 土地権利 所有権
部屋の向き 地目 -
専有面積基準 壁芯 都市計画 -
施工会社 - 用途地域 -
現況 空室 国土法届出 不要
引渡時期 相談 取引態様 仲介
設備その他 -
特記事項 -
備考 ●眺望良好の大規模タワーマンション ●24時間対応各階ごみ置き場 ●新宿まで徒歩圏内
公開日 2026/01/05 広告有効期限 2026/02/05
担当者 長谷川 浩二
電話でお問い合わせ
センチュリー21たばたコーポレーション 店舗情報
[所在地] 東京都荒川区西日暮里2-39-7 GSハイム日暮里1F
[営業時間] 9:30~18:00 水曜日定休 GW・夏季・冬季休暇
[担当] 長谷川 浩二
0120-360-201
携帯電話・PHSからは 03-3803-5377