葛飾区金町1丁目 売土地 (売買 土地) | 葛飾区金町 | 荒川区周辺の不動産情報はセンチュリー21たばたコーポレーション 公式YouTubeチャンネル登録者1万人突破!

葛飾区金町1丁目 売土地  | 葛飾区金町の不動産物件

■金町駅徒歩12分 ■建築条件無 ■更地渡 ■東側公道に面す ■角地 ■スーパー徒歩約5分
【土地】 NEW! オススメ
価格 5,000万円
千代田・常磐緩行線 金町駅 徒歩12分
スマホ表示
物件コード:036501-221463
所在地 坪単価 土地面積 建築条件
土地権利
東京都葛飾区金町 250万円 66.12m2
(20.00坪)
なし
所有権

物件基本情報

物件種目 土地
物件名称 葛飾区金町1丁目 売土地 
所在地 東京都葛飾区金町
交通
千代田・常磐緩行線 金町駅 徒歩12分
京成電鉄金町線 京成金町駅 徒歩12分
土地面積 66.12m2 (20.00坪)
建ぺい率/容積率 60% / 200%
地目 宅地
都市計画 市街化区域
用途地域 準工業地域
最適用途 住宅用地
学校 柴原小学校 / 常盤中学校
センチュリー21たばたコーポレーション
0120-360-201
携帯電話・PHSからは 03-3803-5377

紹介動画

周辺地図

地図を表示中...
ストリートビュー未対応エリアです。

物件詳細情報

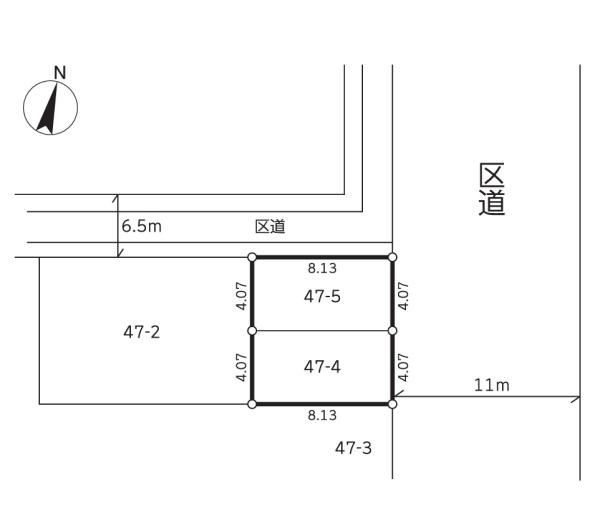
物件用途 - 接道 公道 東 幅員11m
公道 北 幅員6.5m
地勢 - 私道面積 -
土地面積基準 公簿 道路位置指定 -
借地条件 - 不適合接道 -
地代 - セットバック -
現況 上物有 国土法届出 不要
引渡条件/時期 現況有姿 / 相談 取引態様 仲介
設備その他 -
特記事項 -
備考 ■金町駅徒歩12分 ■建築条件無 ■更地渡 ■東側公道に面す ■角地 ■スーパー徒歩約5分
公開日 2025/10/07 広告有効期限 2025/11/07
担当者 長谷川 浩二
電話でお問い合わせ
センチュリー21たばたコーポレーション 店舗情報
[所在地] 東京都荒川区西日暮里2-39-7 GSハイム日暮里1F
[営業時間] 9:30~18:00 水曜日定休 GW・夏季・冬季休暇
[担当] 長谷川 浩二
0120-360-201
携帯電話・PHSからは 03-3803-5377