江戸川区南小岩2丁目 売土地(売買 土地) | 江戸川区南小岩 | 荒川区周辺の不動産情報はセンチュリー21たばたコーポレーション 公式YouTubeチャンネル登録者1.4万人突破!

江戸川区南小岩2丁目 売土地 | 江戸川区南小岩の不動産物件

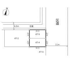
■建築条件無 ■更地渡 ■北西側私道に面す ■小・中学校、スーパー600m圏内
【土地】 NEW! オススメ
価格 4,600万円
総武・中央緩行線 小岩駅 徒歩17分
スマホ表示
物件コード:036501-221469
所在地 坪単価 土地面積 建築条件
土地権利
東京都江戸川区南小岩 179.7万円 84.66m2
(25.60坪)
なし
所有権

物件基本情報

物件種目 土地
物件名称 江戸川区南小岩2丁目 売土地
所在地 東京都江戸川区南小岩
交通
総武・中央緩行線 小岩駅 徒歩17分
土地面積 84.66m2 (25.60坪)
建ぺい率/容積率 60% / 150%
地目 宅地
都市計画 市街化区域
用途地域 第一種中高層住居専用地域
最適用途 住宅用地
学校 南小岩小学校 / 小岩第二中学校
設備・条件
  • ガス:都市ガス
  • 汚水:公共下水
  • 水道:公営水道
  • 雑排水:公共下水
センチュリー21たばたコーポレーション
0120-360-201
携帯電話・PHSからは 03-3803-5377

紹介動画

周辺地図

地図を表示中...
ストリートビュー未対応エリアです。

物件詳細情報

物件用途 - 接道 私道 北西 幅員4m
地勢 - 私道面積 -
土地面積基準 公簿 道路位置指定 -
借地条件 - 不適合接道 -
地代 - セットバック 17.80m2
現況 上物有 国土法届出 不要
引渡条件/時期 現況有姿 / 相談 取引態様 一般
設備その他 -
特記事項 -
備考 ■建築条件無 ■更地渡 ■北西側私道に面す ■小・中学校、スーパー600m圏内
公開日 2026/01/09 広告有効期限 2026/02/09
担当者 長谷川 浩二
電話でお問い合わせ
センチュリー21たばたコーポレーション 店舗情報
[所在地] 東京都荒川区西日暮里2-39-7 GSハイム日暮里1F
[営業時間] 9:30~18:00 水曜日定休 GW・夏季・冬季休暇
[担当] 長谷川 浩二
0120-360-201
携帯電話・PHSからは 03-3803-5377