足立区西保木間4丁目 中古一戸建て(売買 中古一戸建て) | 足立区西保木間 | この物件、買って大丈夫か相談 将来売れるか無料チェック ローンが不安な方はこちら

足立区西保木間4丁目 中古一戸建て | 足立区西保木間の不動産物件

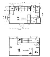
●平成22年8月築 ●1LDK+2LDK ●収納充実 ●2世帯向け住宅 ●カウンターキッチン ●食器洗浄乾燥機
【中古一戸建て】 NEW! オススメ 駐車場あり オール電化
価格 9,800万円 (税無)
東武伊勢崎・大師線 谷塚駅 徒歩12分
スマホ表示
物件コード:036501-213089
所在地 建物面積
土地面積
間取り 築年月
東京都足立区西保木間 168.96m2
227.43m2
3LDK 2010/08

物件基本情報

物件種目 中古一戸建て
物件名称 足立区西保木間4丁目 中古一戸建て
所在地 東京都足立区西保木間
交通
東武伊勢崎・大師線 谷塚駅 徒歩12分
階数 2階建
建物構造 鉄筋コンクリート造
建ぺい率/容積率 60% / 200%
駐車場
学校 -
設備・条件
  • 洗浄便座
  • エアコン
  • Wクローゼット
  • TVドアホン
  • オール電化
  • カウンターキッチン
  • 浴室乾燥機
  • シャワー
  • IHクッキングヒーター
  • 二世帯住宅
  • 日当り良好
  • 食器洗乾燥機
  • トイレ2ヶ所
  • 複層ガラス
  • 2面バルコニー
センチュリー21たばたコーポレーション
0120-360-201
携帯電話・PHSからは 03-3803-5377

紹介動画

画像・写真

周辺地図

地図を表示中...
ストリートビュー未対応エリアです。

物件詳細情報

物件用途 居住用 地目 宅地
間取り詳細 - 都市計画 -
建物向き - 用途地域 準工業地域
土地面積基準 公簿 接道 公道 南 幅員6m (接面4.79m)
土地権利 所有権 私道面積 -
借地条件 - 道路位置指定 -
地代 - 不適合接道 -
建築確認番号 - セットバック -
現況 空家 国土法届出 不要
引渡時期 相談 取引態様 仲介
設備その他 -
特記事項 地域地区 一部準防火地域60・200 最低限度高度地区・第三種高度地区 埋蔵物文化財
備考 ●平成22年8月築 ●2世帯向け住宅 ●カウンターキッチン ●食器洗浄乾燥機
公開日 2026/02/23 広告有効期限 2026/03/26
担当者 長谷川 浩二
電話でお問い合わせ
センチュリー21たばたコーポレーション 店舗情報
[所在地] 東京都荒川区西日暮里2-39-7 GSハイム日暮里1F
[営業時間] 9:30~18:00 水曜日定休 GW・夏季・冬季休暇
[担当] 長谷川 浩二
0120-360-201
携帯電話・PHSからは 03-3803-5377