新宿区下落合3丁目 中古一戸建て(売買 中古一戸建て) | 新宿区下落合 | この物件、買って大丈夫か相談 将来売れるか無料チェック ローンが不安な方はこちら

新宿区下落合3丁目 中古一戸建て | 新宿区下落合の不動産物件

■目白駅徒歩4分 ■旅館(非・民泊)運営中 ■木造2階建 ■1DK ■都内アクセス良好
【中古一戸建て】 NEW! オススメ
価格 9,600万円 (税無)
山手線 目白駅 徒歩4分
スマホ表示
物件コード:036501-222519
所在地 建物面積
土地面積
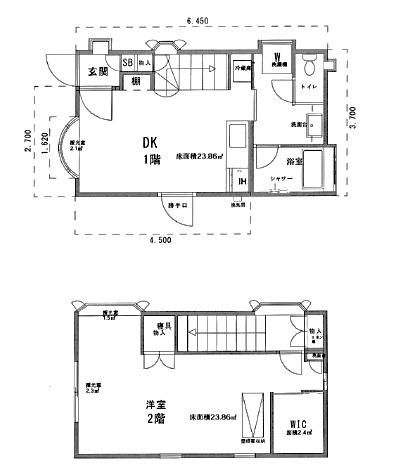
間取り 築年月
東京都新宿区下落合 47.72m2
41.40m2
1DK 1990/02

物件基本情報

物件種目 中古一戸建て
物件名称 新宿区下落合3丁目 中古一戸建て
所在地 東京都新宿区下落合
交通
山手線 目白駅 徒歩4分
東京地下鉄東西線 高田馬場駅 徒歩14分
西武鉄道新宿線 高田馬場駅 徒歩14分
東京地下鉄丸ノ内線 池袋駅 徒歩15分
階数 2階建
建物構造 木造
建ぺい率/容積率 60% / 300%
駐車場
学校 -
設備・条件
  • シャワー
センチュリー21たばたコーポレーション
0120-360-201
携帯電話・PHSからは 03-3803-5377

紹介動画

画像・写真

周辺地図

地図を表示中...
ストリートビュー未対応エリアです。

物件詳細情報

物件用途 居住用 地目 宅地
間取り詳細 - 都市計画 -
建物向き - 用途地域 第一種住居地域
土地面積基準 公簿 接道 -
土地権利 所有権 私道面積 -
借地条件 - 道路位置指定 -
地代 - 不適合接道 -
建築確認番号 - セットバック -
現況 居住中 国土法届出 不要
引渡時期 相談 取引態様 仲介
設備その他 -
特記事項 -
備考 ■目白駅徒歩4分 ■旅館(非・民泊)運営中 ■木造2階建 ■1DK ■都内アクセス良好
公開日 2026/05/21 広告有効期限 2026/06/21
担当者 長谷川 浩二
電話でお問い合わせ
センチュリー21たばたコーポレーション 店舗情報
[所在地] 東京都荒川区西日暮里2-39-7 GSハイム日暮里1F
[営業時間] 9:30~18:00 水曜日定休 GW・夏季・冬季休暇
[担当] 長谷川 浩二
0120-360-201
携帯電話・PHSからは 03-3803-5377