江東区東砂3丁目 売土地 A区画(売買 土地) | 江東区東砂 | この物件、買って大丈夫か相談 将来売れるか無料チェック ローンが不安な方はこちら

江東区東砂3丁目 売土地 A区画 | 江東区東砂の不動産物件

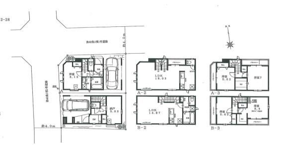
■東大島駅徒歩17分 ■建築条件なし ■更地 ■西側4m巾、北側4m巾道路の角地
【土地】 NEW! オススメ
価格 6,190万円
東京都新宿線 東大島駅 徒歩17分
スマホ表示
物件コード:036501-222836
所在地 坪単価 土地面積 建築条件
土地権利
東京都江東区東砂 369.1万円 55.45m2
(16.77坪)
なし
所有権

物件基本情報

物件種目 土地
物件名称 江東区東砂3丁目 売土地 A区画
所在地 東京都江東区東砂
交通
東京都新宿線 東大島駅 徒歩17分
東京都新宿線 大島駅 徒歩24分
土地面積 55.45m2 (16.77坪)
建ぺい率/容積率 60% / 300%
地目 宅地
都市計画 市街化区域
用途地域 準工業地域
最適用途 住宅用地
学校 第六砂町小学校 / 第二砂町中学校
センチュリー21たばたコーポレーション
0120-360-201
携帯電話・PHSからは 03-3803-5377

紹介動画

画像・写真

周辺地図

地図を表示中...
ストリートビュー未対応エリアです。

物件詳細情報

物件用途 - 接道 公道 西 幅員4m
北 幅員4m
地勢 - 私道面積 -
土地面積基準 公簿 道路位置指定 -
借地条件 - 不適合接道 -
地代 - セットバック -
現況 更地 国土法届出 不要
引渡条件/時期 現況有姿 / 相談 取引態様 一般
設備その他 -
特記事項 -
備考 ■東大島駅徒歩17分 ■建築条件なし ■更地 ■西側4m巾、北側4m巾道路の角地
公開日 2026/05/23 広告有効期限 2026/06/23
担当者 長谷川 浩二
電話でお問い合わせ
センチュリー21たばたコーポレーション 店舗情報
[所在地] 東京都荒川区西日暮里2-39-7 GSハイム日暮里1F
[営業時間] 9:30~18:00 水曜日定休 GW・夏季・冬季休暇
[担当] 長谷川 浩二
0120-360-201
携帯電話・PHSからは 03-3803-5377