売買 新築マンション | 荒川区東尾久 | この物件、買って大丈夫か相談 将来売れるか無料チェック ローンが不安な方はこちら

荒川区東尾久の不動産物件

■2026年3月新築マンション ■7階部分、北西向きバルコニー ■角部屋
【新築マンション】 NEW! オススメ 新築 角部屋 最上階
価格 7,400万円 (税込)
東京地下鉄千代田線 町屋駅 徒歩8分
スマホ表示
物件コード:036501-222640
所在地 管理費 専有面積
バルコニー面積
間取り
所在階
築年月
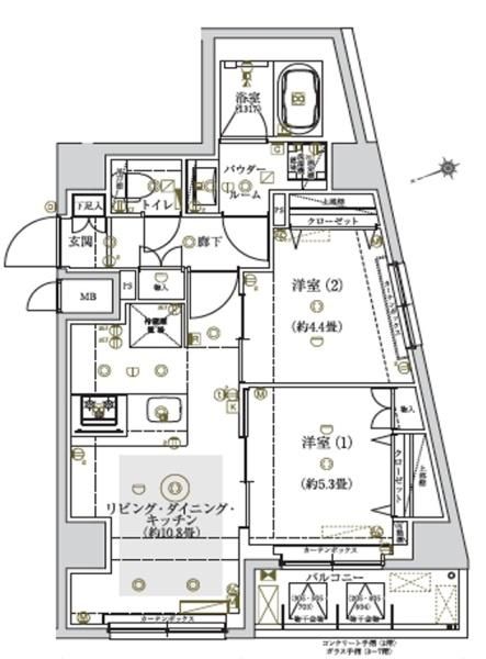
東京都荒川区東尾久 16,600円 50.88m2
4.26m2
2LDK
7階
2026/03

物件基本情報

▲外観イメージ
物件種目 新築マンション
物件名称 レアライズ町屋
所在地 東京都荒川区東尾久
交通
東京地下鉄千代田線 町屋駅 徒歩8分
日暮里舎人ライナー 赤土小学校前駅 徒歩7分
東京都荒川線 町屋二丁目駅 徒歩7分
京成電鉄本線 新三河島駅 徒歩8分
修繕積立金 2,000円
所在階/階数 7階 / 7階建
総戸数 28戸
建物構造 鉄筋コンクリート造
駐車場 空無
学校 赤土小学校 / 第九中学校
設備・条件
  • 床暖房
  • システムキッチン
  • 洗浄便座
  • 室内洗濯機置場
  • エアコン
  • エレベーター
  • オートロック
  • TVドアホン
  • 宅配ボックス
  • 駐輪場
  • バイク置き場
  • 角部屋
  • カウンターキッチン
  • 浴室乾燥機
  • シャワー
  • 給湯器
  • バルコニー
センチュリー21たばたコーポレーション
0120-360-201
携帯電話・PHSからは 03-3803-5377

紹介動画

画像・写真

  • エントランスイメージ
    エントランスイメージ
  • エントランスイメージ
    エントランスイメージ
  • 内装イメージ
    内装イメージ
  • 内装イメージ
    内装イメージ

周辺地図

地図を表示中...
ストリートビュー未対応エリアです。

物件詳細情報

物件用途 居住用 土地面積 -
間取り詳細 - 土地権利 所有権
部屋の向き 北西 地目 -
専有面積基準 壁芯 都市計画 -
施工会社 - 用途地域 -
現況 建築中 国土法届出 不要
引渡時期 相談 取引態様 一般
設備その他 -
特記事項 -
備考 ■2026年3月新築マンション ■7階部分、北西向きバルコニー ■角部屋
公開日 2026/03/12 広告有効期限 2026/04/12
担当者 長谷川 浩二
電話でお問い合わせ
センチュリー21たばたコーポレーション 店舗情報
[所在地] 東京都荒川区西日暮里2-39-7 GSハイム日暮里1F
[営業時間] 9:30~18:00 水曜日定休 GW・夏季・冬季休暇
[担当] 長谷川 浩二
0120-360-201
携帯電話・PHSからは 03-3803-5377