売買 中古マンション | 荒川区南千住 | この物件、買って大丈夫か相談 将来売れるか無料チェック ローンが不安な方はこちら

荒川区南千住の不動産物件

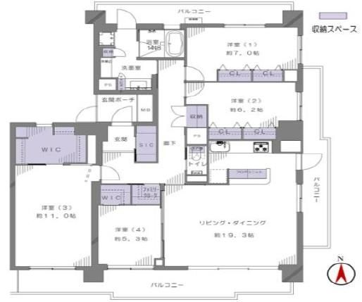
●複数路線利用可 ●広いリビングダイニング ●洋室4部屋 各部屋に収納有 ●学校 スーパー 公園 コンビニ徒歩圏内
【中古マンション】 NEW! オススメ
価格 9,680万円 (税込)
東京都荒川線 荒川区役所前駅 徒歩10分
スマホ表示
物件コード:036501-222344
所在地 管理費 専有面積
バルコニー面積
間取り
所在階
築年月
東京都荒川区南千住 14,994円 124.74m2
38.30m2
4LDK
11階
1990/03

物件基本情報

物件種目 中古マンション
物件名称 アクロシティBポート
所在地 東京都荒川区南千住
交通
東京都荒川線 荒川区役所前駅 徒歩10分
常磐線 南千住駅 徒歩14分
東京地下鉄日比谷線 南千住駅 徒歩15分
東京地下鉄千代田線 町屋駅 徒歩18分
修繕積立金 33,260円
所在階/階数 11階 / 15階建
総戸数 54戸
建物構造 鉄筋コンクリート造
駐車場 空無 13,500円
学校 瑞光小学校 / 第一中学校
設備・条件
  • Wクローゼット
  • エレベーター
  • バルコニー
  • 2面バルコニー
センチュリー21たばたコーポレーション
0120-360-201
携帯電話・PHSからは 03-3803-5377

紹介動画

周辺地図

地図を表示中...
ストリートビュー未対応エリアです。

物件詳細情報

物件用途 居住用 土地面積 -
間取り詳細 - 土地権利 所有権
部屋の向き 地目 -
専有面積基準 壁芯 都市計画 -
施工会社 - 用途地域 -
現況 居住中 国土法届出 不要
引渡時期 相談 取引態様 仲介
設備その他 -
特記事項 -
備考 ●複数路線利用可 ●広いリビングダイニング ●洋室4部屋 各部屋に収納有
公開日 2026/01/27 広告有効期限 2026/02/27
担当者 長谷川 浩二
電話でお問い合わせ
センチュリー21たばたコーポレーション 店舗情報
[所在地] 東京都荒川区西日暮里2-39-7 GSハイム日暮里1F
[営業時間] 9:30~18:00 水曜日定休 GW・夏季・冬季休暇
[担当] 長谷川 浩二
0120-360-201
携帯電話・PHSからは 03-3803-5377