売買 中古マンション | 板橋区小茂根 | この物件、買って大丈夫か相談 将来売れるか無料チェック ローンが不安な方はこちら

板橋区小茂根の不動産物件

■小竹向原駅徒歩10分 ■南向きバルコニー+専用庭 ■スーパー徒歩圏 ■告知事項有
【中古マンション】 NEW! オススメ
価格 4,300万円 (税無)
東京地下鉄有楽町線 小竹向原駅 徒歩10分
スマホ表示
物件コード:036501-222275
所在地 管理費 専有面積
バルコニー面積
間取り
所在階
築年月
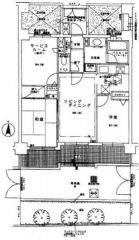
東京都板橋区小茂根 16,900円 62.20m2
11.06m2
2SLDK
1階
1998/03

物件基本情報

物件種目 中古マンション
物件名称 ライオンズガーデン小竹向原
所在地 東京都板橋区小茂根
交通
東京地下鉄有楽町線 小竹向原駅 徒歩10分
東京地下鉄副都心線 小竹向原駅 徒歩10分
西武有楽町線 小竹向原駅 徒歩10分
東京地下鉄有楽町線 氷川台駅 徒歩16分
修繕積立金 18,660円
所在階/階数 1階 / 6階建
総戸数 31戸
建物構造 鉄筋コンクリート造
駐車場 空無
学校 上板橋第二小学校 / 桜川中学校
設備・条件
  • 室内洗濯機置場
  • エレベーター
  • 駐輪場
  • バイク置き場
  • 専用庭
  • シャワー
  • 給湯器
  • バルコニー
センチュリー21たばたコーポレーション
0120-360-201
携帯電話・PHSからは 03-3803-5377

紹介動画

画像・写真

周辺地図

地図を表示中...
ストリートビュー未対応エリアです。

物件詳細情報

物件用途 居住用 土地面積 -
間取り詳細 - 土地権利 所有権
部屋の向き 地目 -
専有面積基準 壁芯 都市計画 -
施工会社 古久根建設(株) 用途地域 -
現況 居住中 国土法届出 不要
引渡時期 相談 取引態様 仲介
設備その他 -
特記事項 -
備考 ■小竹向原駅徒歩10分 ■南向きバルコニー+専用庭 ■スーパー徒歩圏 ■告知事項有
公開日 2026/01/22 広告有効期限 2026/02/22
担当者 長谷川 浩二
電話でお問い合わせ
センチュリー21たばたコーポレーション 店舗情報
[所在地] 東京都荒川区西日暮里2-39-7 GSハイム日暮里1F
[営業時間] 9:30~18:00 水曜日定休 GW・夏季・冬季休暇
[担当] 長谷川 浩二
0120-360-201
携帯電話・PHSからは 03-3803-5377