売買 中古マンション | 墨田区立花 | 荒川区周辺の不動産情報はセンチュリー21たばたコーポレーション 公式YouTubeチャンネル登録者1.4万人突破!

墨田区立花の不動産物件

■小村井駅徒歩3分 ■空室 ■3LDK ■8階部分・角部屋 ■EV ■通勤、通学、買物便利
【中古マンション】 NEW! オススメ 角部屋
価格 6,299万円 (税込)
東武鉄道亀戸線 小村井駅 徒歩3分
スマホ表示
物件コード:036501-222168
所在地 管理費 専有面積
バルコニー面積
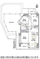
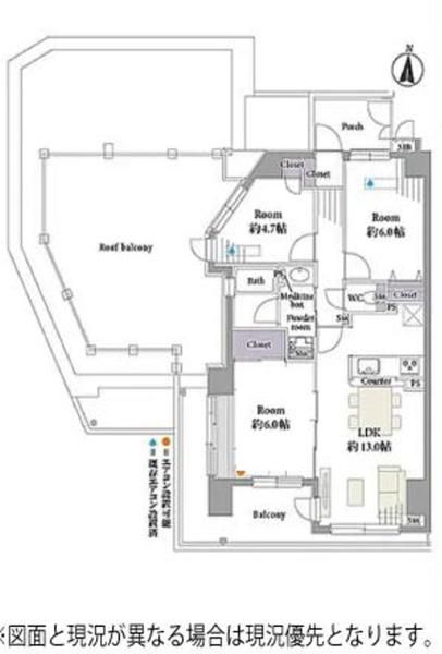
間取り
所在階
築年月
東京都墨田区立花 19,960円 66.74m2
46.37m2
3LDK
5階
1998/10

物件基本情報

物件種目 中古マンション
物件名称 キャッスルマンション亀戸立花
所在地 東京都墨田区立花
交通
東武鉄道亀戸線 小村井駅 徒歩3分
東武鉄道亀戸線 東あずま駅 徒歩8分
京成電鉄押上線 京成曳舟駅 徒歩15分
総武・中央緩行線 平井駅 徒歩19分
修繕積立金 19,820円
所在階/階数 5階 / 10階建
総戸数 31戸
建物構造 鉄骨鉄筋コンクリート造
駐車場
学校 中川小学校 / 吾嬬立花中学校
設備・条件
  • 室内洗濯機置場
  • 角部屋
  • シャワー
  • 給湯器
  • バルコニー
  • ペット不可
  • 日当り良好
  • ディスポーザー
センチュリー21たばたコーポレーション
0120-360-201
携帯電話・PHSからは 03-3803-5377

紹介動画

画像・写真

周辺地図

地図を表示中...
ストリートビュー未対応エリアです。

物件詳細情報

物件用途 居住用 土地面積 -
間取り詳細 - 土地権利 所有権
部屋の向き 西 地目 -
専有面積基準 壁芯 都市計画 -
施工会社 鉄建建設(株) 用途地域 -
現況 空室 国土法届出 不要
引渡時期 相談 取引態様 一般
設備その他 -
特記事項 -
備考 ■小村井駅徒歩3分 ■空室 ■3LDK ■8階部分・角部屋 ■EV ■通勤、通学、買物便利
公開日 2025/12/23 広告有効期限 2026/01/23
担当者 長谷川 浩二
電話でお問い合わせ
センチュリー21たばたコーポレーション 店舗情報
[所在地] 東京都荒川区西日暮里2-39-7 GSハイム日暮里1F
[営業時間] 9:30~18:00 水曜日定休 GW・夏季・冬季休暇
[担当] 長谷川 浩二
0120-360-201
携帯電話・PHSからは 03-3803-5377