売買 中古マンション | 江東区南砂 | 荒川区周辺の不動産情報はセンチュリー21たばたコーポレーション 公式YouTubeチャンネル登録者1万人突破!

江東区南砂の不動産物件

■南砂町駅徒歩5分 ■2023年1月築 ■2SLDK ■10階・南向き ■通勤、買物便利
【中古マンション】 NEW! オススメ
価格 8,080万円 (税無)
東京地下鉄東西線 南砂町駅 徒歩5分
スマホ表示
物件コード:036501-221978
所在地 管理費 専有面積
バルコニー面積
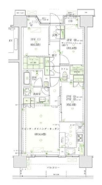
間取り
所在階
築年月
東京都江東区南砂 12,380円 72.78m2
11.21m2
2SLDK
10階
2023/01

物件基本情報

物件種目 中古マンション
物件名称 リビオシティ南砂町ステーションサイト 
所在地 東京都江東区南砂
交通
東京地下鉄東西線 南砂町駅 徒歩5分
修繕積立金 6,520円
所在階/階数 10階 / 13階建
総戸数 361戸
建物構造 鉄筋コンクリート造
駐車場
学校 -
設備・条件
  • フローリング
  • システムキッチン
  • シャンプードレッサー
  • 追い焚き
  • 洗浄便座
  • 室内洗濯機置場
  • Wクローゼット
  • エレベーター
  • TVドアホン
  • 宅配ボックス
  • コンロ三口
  • 浴室乾燥機
  • シャワー
  • 給湯器
  • バルコニー
  • 日当り良好
  • 食器洗乾燥機
  • オートバス
  • ディスポーザー
センチュリー21たばたコーポレーション
0120-360-201
携帯電話・PHSからは 03-3803-5377

紹介動画

画像・写真

周辺地図

地図を表示中...
ストリートビュー未対応エリアです。

物件詳細情報

物件用途 居住用 土地面積 -
間取り詳細 - 土地権利 定期借地権(賃借権)
部屋の向き 地目 -
専有面積基準 壁芯 都市計画 -
施工会社 - 用途地域 -
現況 居住中 国土法届出 不要
引渡時期 相談 取引態様 仲介
設備その他 -
特記事項 -
備考 ■南砂町駅徒歩5分 ■2023年1月築 ■2SLDK ■10階・南向き ■通勤、買物便利
公開日 2025/11/24 広告有効期限 2025/12/25
担当者 長谷川 浩二
電話でお問い合わせ
センチュリー21たばたコーポレーション 店舗情報
[所在地] 東京都荒川区西日暮里2-39-7 GSハイム日暮里1F
[営業時間] 9:30~18:00 水曜日定休 GW・夏季・冬季休暇
[担当] 長谷川 浩二
0120-360-201
携帯電話・PHSからは 03-3803-5377