売買 中古マンション | 足立区大谷田 | 荒川区周辺の不動産情報はセンチュリー21たばたコーポレーション 公式YouTubeチャンネル登録者1万人突破!

足立区大谷田の不動産物件

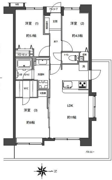
■新規内装済 ■3LDK ■2階部分・東向きバルコニー ■角部屋 ■EV有 ■オートロック
【中古マンション】 NEW! オススメ 角部屋
価格 3,180万円 (税込)
東京地下鉄千代田線 北綾瀬駅 徒歩17分
スマホ表示
物件コード:036501-221886
所在地 管理費 専有面積
バルコニー面積
間取り
所在階
築年月
東京都足立区大谷田 16,500円 57.32m2
19.95m2
3LDK
2階
1995/09

物件基本情報

物件種目 中古マンション
物件名称 ダイアパレス北綾瀬Ⅲ
所在地 東京都足立区大谷田
交通
東京地下鉄千代田線 北綾瀬駅 徒歩17分
修繕積立金 21,300円
所在階/階数 2階 / 6階建
総戸数 26戸
建物構造 鉄筋コンクリート造
駐車場 空無
学校 -
設備・条件
  • システムキッチン
  • 追い焚き
  • 室内洗濯機置場
  • エアコン
  • Wクローゼット
  • エレベーター
  • オートロック
  • TVドアホン
  • 宅配ボックス
  • 駐輪場
  • バイク置き場
  • 角部屋
  • カウンターキッチン
  • 浴室乾燥機
  • シャワー
  • 給湯器
  • バルコニー
  • ペット不可
センチュリー21たばたコーポレーション
0120-360-201
携帯電話・PHSからは 03-3803-5377

紹介動画

画像・写真

周辺地図

地図を表示中...
ストリートビュー未対応エリアです。

物件詳細情報

物件用途 居住用 土地面積 -
間取り詳細 - 土地権利 所有権
部屋の向き 地目 -
専有面積基準 壁芯 都市計画 -
施工会社 - 用途地域 -
現況 空室 国土法届出 不要
引渡時期 相談 取引態様 一般
設備その他 -
特記事項 -
備考 ■新規内装済 ■3LDK ■2階部分・東向きバルコニー ■角部屋 ■EV有 ■オートロック
公開日 2025/11/21 広告有効期限 2025/12/22
担当者 長谷川 浩二
電話でお問い合わせ
センチュリー21たばたコーポレーション 店舗情報
[所在地] 東京都荒川区西日暮里2-39-7 GSハイム日暮里1F
[営業時間] 9:30~18:00 水曜日定休 GW・夏季・冬季休暇
[担当] 長谷川 浩二
0120-360-201
携帯電話・PHSからは 03-3803-5377