江戸川区南葛西5丁目 新築一戸建て(売買 新築一戸建て) | 江戸川区南葛西 | 荒川区周辺の不動産情報はセンチュリー21たばたコーポレーション 公式YouTubeチャンネル登録者1.4万人突破!

江戸川区南葛西5丁目 新築一戸建て | 江戸川区南葛西の不動産物件

■2025年10月築 ■南西側公道に面す ■小学校、中学校、スーパー400m圏内
【新築一戸建て】 NEW! オススメ 新築 駐車場あり
価格 7,798万円 (税込)
京葉線 葛西臨海公園駅 徒歩17分
スマホ表示
物件コード:036501-221866
所在地 建物面積
土地面積
間取り 築年月
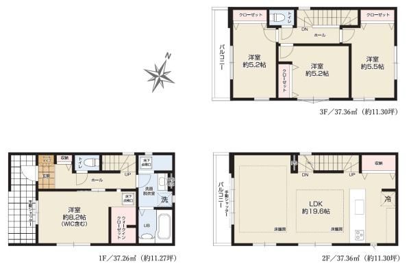
東京都江戸川区南葛西 111.98m2
85.80m2
4LDK 2025/10

物件基本情報

物件種目 新築一戸建て
物件名称 江戸川区南葛西5丁目 新築一戸建て
所在地 東京都江戸川区南葛西
交通
京葉線 葛西臨海公園駅 徒歩17分
階数 3階建
建物構造 木造
建ぺい率/容積率 60% / 300%
駐車場
学校 南葛西第三小学校 / 南葛西中学校
設備・条件
  • ガス:都市ガス
  • 汚水:公共下水
  • 水道:公営水道
  • 雑排水:公共下水
  • 床暖房
  • システムキッチン
  • 洗浄便座
  • Wクローゼット
  • TVドアホン
  • 浴室乾燥機
  • シャワー
  • バルコニー
  • 食器洗乾燥機
  • 浄水器
  • トイレ2ヶ所
  • 複層ガラス
センチュリー21たばたコーポレーション
0120-360-201
携帯電話・PHSからは 03-3803-5377

紹介動画

画像・写真

  • 内装イメージ
    内装イメージ

周辺地図

地図を表示中...
ストリートビュー未対応エリアです。

物件詳細情報

物件用途 居住用 地目 宅地
間取り詳細 - 都市計画 -
建物向き - 用途地域 第一種住居地域
土地面積基準 公簿 接道 公道 南西 幅員10.05m
土地権利 所有権 私道面積 -
借地条件 - 道路位置指定 -
地代 - 不適合接道 -
建築確認番号 - セットバック -
現況 新築 国土法届出 不要
引渡時期 相談 取引態様 一般
設備その他 -
特記事項 -
備考 ■2025年10月築 ■南西側公道に面す ■小学校、中学校、スーパー400m圏内
公開日 2025/12/25 広告有効期限 2026/01/25
担当者 長谷川 浩二
電話でお問い合わせ
センチュリー21たばたコーポレーション 店舗情報
[所在地] 東京都荒川区西日暮里2-39-7 GSハイム日暮里1F
[営業時間] 9:30~18:00 水曜日定休 GW・夏季・冬季休暇
[担当] 長谷川 浩二
0120-360-201
携帯電話・PHSからは 03-3803-5377