売買 中古マンション | 墨田区堤通 | 荒川区周辺の不動産情報はセンチュリー21たばたコーポレーション 公式YouTubeチャンネル登録者1万人突破!

墨田区堤通の不動産物件

■曳舟駅徒歩10分 ■2006年1月築 ■4階部分・北西向バルコニー ■眺望良好 ■EV
【中古マンション】 NEW! オススメ ペット
価格 6,080万円 (税無)
東武伊勢崎・大師線 曳舟駅 徒歩10分
スマホ表示
物件コード:036501-221845
所在地 管理費 専有面積
バルコニー面積
間取り
所在階
築年月
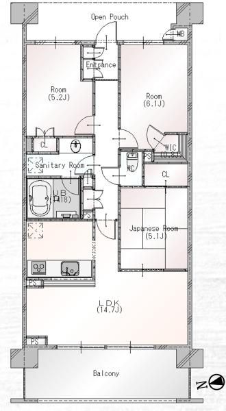
東京都墨田区堤通 12,865円 70.68m2
12.40m2
3LDK
4階
2006/01

物件基本情報

物件種目 中古マンション
物件名称 サングランデ桜橋
所在地 東京都墨田区堤通
交通
東武伊勢崎・大師線 曳舟駅 徒歩10分
東武伊勢崎・大師線 東向島駅 徒歩15分
京成電鉄押上線 京成曳舟駅 徒歩17分
東京地下鉄半蔵門線 押上駅 徒歩19分
修繕積立金 14,740円
所在階/階数 4階 / 12階建
総戸数 160戸
建物構造 鉄筋コンクリート造
駐車場
学校 第一寺島小学校 / 墨田中学校
設備・条件
  • 室内洗濯機置場
  • Wクローゼット
  • エレベーター
  • 宅配ボックス
  • ペット可
  • シャワー
  • 給湯器
  • バルコニー
  • キッズルーム
  • 24時間ゴミ出し可
センチュリー21たばたコーポレーション
0120-360-201
携帯電話・PHSからは 03-3803-5377

紹介動画

周辺地図

地図を表示中...
ストリートビュー未対応エリアです。

物件詳細情報

物件用途 居住用 土地面積 -
間取り詳細 - 土地権利 所有権
部屋の向き 北西 地目 -
専有面積基準 壁芯 都市計画 -
施工会社 京成建設(株) 用途地域 -
現況 居住中 国土法届出 不要
引渡時期 相談 取引態様 仲介
設備その他 -
特記事項 -
備考 ■曳舟駅徒歩10分 ■2006年1月築 ■4階部分・北西向バルコニー ■眺望良好 ■EV
公開日 2025/11/06 広告有効期限 2025/12/07
担当者 長谷川 浩二
電話でお問い合わせ
センチュリー21たばたコーポレーション 店舗情報
[所在地] 東京都荒川区西日暮里2-39-7 GSハイム日暮里1F
[営業時間] 9:30~18:00 水曜日定休 GW・夏季・冬季休暇
[担当] 長谷川 浩二
0120-360-201
携帯電話・PHSからは 03-3803-5377