江戸川区南葛西6丁目 中古一戸建(売買 中古一戸建て) | 江戸川区南葛西 | 荒川区周辺の不動産情報はセンチュリー21たばたコーポレーション 公式YouTubeチャンネル登録者1万人突破!

江戸川区南葛西6丁目 中古一戸建 | 江戸川区南葛西の不動産物件

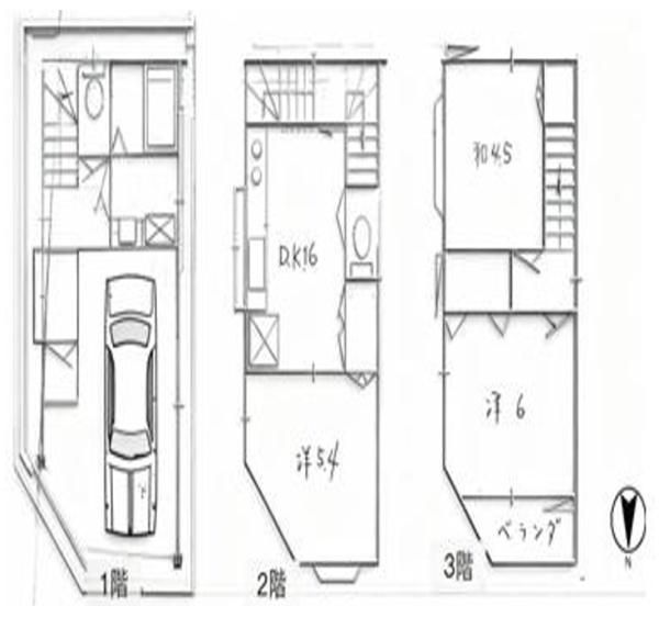
●全室2面採光 陽当り良好 ●学校 スーパー 葛西臨海公園 徒歩圏内 ●車庫あり ●トイレ2か所 ●子育ても暮らしも叶う空間 ●契約不適合責任免責
【中古一戸建て】 NEW! オススメ 駐車場あり
価格 4,180万円 (税無)
東京地下鉄東西線 葛西駅 徒歩33分
バス15分 バス停「南葛西会館前」 徒歩5分
スマホ表示
物件コード:036501-221710
所在地 建物面積
土地面積
間取り 築年月
東京都江戸川区南葛西 74.05m2
35.19m2
3DK 1994/11

物件基本情報

物件種目 中古一戸建て
物件名称 江戸川区南葛西6丁目 中古一戸建
所在地 東京都江戸川区南葛西
交通
東京地下鉄東西線 葛西駅 徒歩33分
バス15分 バス停「南葛西会館前」 徒歩5分
京葉線 葛西臨海公園駅 徒歩25分
バス12分 バス停「南葛西小学校前」 徒歩5分
階数 3階建
建物構造 木造
建ぺい率/容積率 60% / 300%
駐車場 有 (1台)
学校 -
設備・条件
  • 日当り良好
  • トイレ2ヶ所
センチュリー21たばたコーポレーション
0120-360-201
携帯電話・PHSからは 03-3803-5377

紹介動画

画像・写真

周辺地図

地図を表示中...
ストリートビュー未対応エリアです。

物件詳細情報

物件用途 居住用 地目 宅地
間取り詳細 - 都市計画 -
建物向き - 用途地域 第一種住居地域
土地面積基準 公簿 接道 私道 北 幅員4m
公道 東 幅員7m
土地権利 所有権 私道面積 -
借地条件 - 道路位置指定 -
地代 - 不適合接道 -
建築確認番号 - セットバック -
現況 空家 国土法届出 不要
引渡時期 相談 取引態様 仲介
設備その他 -
特記事項 -
備考 ●全室2面採光 陽当り良好 ●車庫あり ●トイレ2か所 ●契約不適合責任免責
公開日 2025/10/19 広告有効期限 2025/11/19
担当者 長谷川 浩二
電話でお問い合わせ
センチュリー21たばたコーポレーション 店舗情報
[所在地] 東京都荒川区西日暮里2-39-7 GSハイム日暮里1F
[営業時間] 9:30~18:00 水曜日定休 GW・夏季・冬季休暇
[担当] 長谷川 浩二
0120-360-201
携帯電話・PHSからは 03-3803-5377