売買 中古マンション | 豊島区池袋 | 荒川区周辺の不動産情報はセンチュリー21たばたコーポレーション 公式YouTubeチャンネル登録者1万人突破!

豊島区池袋の不動産物件

■池袋駅徒歩4分 ■2013年2月築 ■19階部分・東向きバルコニー ■眺望良好 ■EV
【中古マンション】 NEW! オススメ ペット
価格 9,880万円 (税無)
山手線 池袋駅 徒歩4分
スマホ表示
物件コード:036501-221653
所在地 管理費 専有面積
バルコニー面積
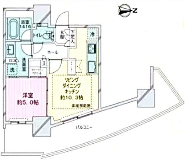
間取り
所在階
築年月
東京都豊島区池袋 16,980円 40.41m2
21.64m2
1LDK
11階
2013/02

物件基本情報

物件種目 中古マンション
物件名称 ルミナリータワー池袋
所在地 東京都豊島区池袋
交通
山手線 池袋駅 徒歩4分
東京地下鉄丸ノ内線 池袋駅 徒歩4分
東武鉄道東上線 池袋駅 徒歩4分
東京地下鉄有楽町線 要町駅 徒歩15分
修繕積立金 11,320円
所在階/階数 11階 / 30階建
総戸数 219戸
建物構造 鉄筋コンクリート造
駐車場 空無
学校 池袋小学校 / 西池袋中学校
設備・条件
  • 床暖房
  • 追い焚き
  • 洗浄便座
  • 室内洗濯機置場
  • Wクローゼット
  • エレベーター
  • オートロック
  • ペット可
  • 浴室乾燥機
  • シャワー
  • 給湯器
  • バルコニー
センチュリー21たばたコーポレーション
0120-360-201
携帯電話・PHSからは 03-3803-5377

紹介動画

画像・写真

周辺地図

地図を表示中...
ストリートビュー未対応エリアです。

物件詳細情報

物件用途 居住用 土地面積 -
間取り詳細 - 土地権利 所有権
部屋の向き 地目 -
専有面積基準 壁芯 都市計画 -
施工会社 (株)長谷工コーポレーション 用途地域 -
現況 居住中 国土法届出 不要
引渡時期 相談 取引態様 仲介
設備その他 -
特記事項 -
備考 ■池袋駅徒歩4分 ■2013年2月築 ■19階部分・東向きバルコニー ■眺望良好 ■EV
公開日 2025/12/01 広告有効期限 2026/01/01
担当者 長谷川 浩二
電話でお問い合わせ
センチュリー21たばたコーポレーション 店舗情報
[所在地] 東京都荒川区西日暮里2-39-7 GSハイム日暮里1F
[営業時間] 9:30~18:00 水曜日定休 GW・夏季・冬季休暇
[担当] 長谷川 浩二
0120-360-201
携帯電話・PHSからは 03-3803-5377