葛飾区奥戸3丁目 中古一戸建(売買 中古一戸建て) | 葛飾区奥戸 | 荒川区周辺の不動産情報はセンチュリー21たばたコーポレーション 公式YouTubeチャンネル登録者1万人突破!

葛飾区奥戸3丁目 中古一戸建 | 葛飾区奥戸の不動産物件

●南西向き 陽当り良好 ●2路線利用可 ●屋根にソーラーパネル設置 電気代節約 ●駐車スペース有 ●学校 スーパー コンビニ
【中古一戸建て】 NEW! オススメ 駐車場あり
価格 3,100万円 (税無)
京成電鉄押上線 京成立石駅 徒歩20分
スマホ表示
物件コード:036501-221532
所在地 建物面積
土地面積
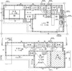
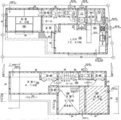
間取り 築年月
東京都葛飾区奥戸 80.56m2
67.90m2
4LDK 2009/07

物件基本情報

物件種目 中古一戸建て
物件名称 葛飾区奥戸3丁目 中古一戸建
所在地 東京都葛飾区奥戸
交通
京成電鉄押上線 京成立石駅 徒歩20分
総武本線 新小岩駅 徒歩23分
階数 2階建
建物構造 木造
建ぺい率/容積率 60% / 200%
駐車場 有 (1台)
学校 南奥戸小学校 / -
設備・条件
  • システムキッチン
  • シャンプードレッサー
  • 洗浄便座
  • IHクッキングヒーター
  • 日当り良好
  • トイレ2ヶ所
センチュリー21たばたコーポレーション
0120-360-201
携帯電話・PHSからは 03-3803-5377

紹介動画

画像・写真

周辺地図

地図を表示中...
ストリートビュー未対応エリアです。

物件詳細情報

物件用途 居住用 地目 宅地
間取り詳細 - 都市計画 -
建物向き - 用途地域 準工業地域
土地面積基準 公簿 接道 私道 西 幅員4m (接面2.6m)
土地権利 所有権 私道面積 -
借地条件 - 道路位置指定 -
地代 - 不適合接道 -
建築確認番号 第08UDI3C号 セットバック -
現況 居住中 国土法届出 不要
引渡時期 相談 取引態様 仲介
設備その他 -
特記事項 -
備考 ●南西向き 陽当り良好 ●2路線利用可 ●屋根にソーラーパネル設置 ●駐車スペース有
公開日 2025/10/09 広告有効期限 2025/11/09
担当者 長谷川 浩二
電話でお問い合わせ
センチュリー21たばたコーポレーション 店舗情報
[所在地] 東京都荒川区西日暮里2-39-7 GSハイム日暮里1F
[営業時間] 9:30~18:00 水曜日定休 GW・夏季・冬季休暇
[担当] 長谷川 浩二
0120-360-201
携帯電話・PHSからは 03-3803-5377