売買 中古マンション | 江戸川区中央 | 荒川区周辺の不動産情報はセンチュリー21たばたコーポレーション 公式YouTubeチャンネル登録者1万人突破!

江戸川区中央の不動産物件

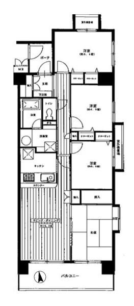
■約80・46平米、4LDK ■陽当・眺望良好 ■角部屋 ■小・中学校、スーパー徒歩圏
【中古マンション】 NEW! オススメ 角部屋
価格 4,080万円 (税無)
総武・中央緩行線 新小岩駅
バス10分 バス停「江戸川区役所前」 徒歩3分
スマホ表示
物件コード:036501-221494
所在地 管理費 専有面積
バルコニー面積
間取り
所在階
築年月
東京都江戸川区中央 12,800円 80.46m2
9.60m2
4LDK
8階
1996/02

物件基本情報

物件種目 中古マンション
物件名称 メイツ新小岩親水公園
所在地 東京都江戸川区中央
交通
総武・中央緩行線 新小岩駅
バス10分 バス停「江戸川区役所前」 徒歩3分
修繕積立金 17,100円
所在階/階数 8階 / 10階建
総戸数 81戸
建物構造 鉄筋コンクリート造
駐車場
学校 第三松江小学校 / 松江第三中学校
設備・条件
  • エレベーター
  • オートロック
  • 角部屋
  • カウンターキッチン
  • シャワー
  • 給湯器
  • バルコニー
  • 日当り良好
センチュリー21たばたコーポレーション
0120-360-201
携帯電話・PHSからは 03-3803-5377

紹介動画

画像・写真

周辺地図

地図を表示中...
ストリートビュー未対応エリアです。

物件詳細情報

物件用途 居住用 土地面積 -
間取り詳細 - 土地権利 所有権
部屋の向き 地目 -
専有面積基準 壁芯 都市計画 -
施工会社 長谷工コーポレーション 用途地域 -
現況 居住中 国土法届出 不要
引渡時期 相談 取引態様 仲介
設備その他 -
特記事項 -
備考 ■約80・46平米、4LDK ■陽当・眺望良好 ■角部屋 ■小・中学校、スーパー徒歩圏
公開日 2025/10/10 広告有効期限 2025/11/10
担当者 長谷川 浩二
電話でお問い合わせ
センチュリー21たばたコーポレーション 店舗情報
[所在地] 東京都荒川区西日暮里2-39-7 GSハイム日暮里1F
[営業時間] 9:30~18:00 水曜日定休 GW・夏季・冬季休暇
[担当] 長谷川 浩二
0120-360-201
携帯電話・PHSからは 03-3803-5377